AbaloneHill Design

Drawings

Portfolio and Drawing Examples


Anatomy of a House
A *.pdf of Engineering Details ARCH D Deck Engineering
Anatomy of a house; detailed drawings by the Designer guide the structural engineer and the building contractor.


A *.pdf of Hydronically Solar Heated Spring Flower Beds Thermal Engineering
Concept Proposal: design for solar hydronically heated spring flower beds.


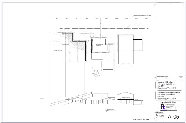
A *.pdf of Solar Access and Shadow Analysis Solar Shadow Engineering
Jurisdictions with a Solar Access Ordinance designed to preserve the ability of residents to add functional solar panels to existing structures. New construction may not shade more than 10% of the area of a neighboring roof on the shortest day of the year between 0900 hr and 1500hr.

A simple portfolio of drawings is available upon request, or online (the file is large); PortfolioAbaloneHill P1 A simple portfolio of drawings is available upon request, or online (the file is large); PortfolioAbaloneHill P2 A simple portfolio of drawings is available upon request, or online (the file is large); PortfolioAbaloneHill P3


  Business Card  


Home